相对长久的主体结构与不断变迁的居住需求之间的矛盾,是一个由来已久的住宅设计问题。柯布西耶曾倡议多样化的住户(individual dwellings)可以生长在统一的庞大结构(megastructure)之中。而当今的智能算法为破解“一种结构适配多种空间”难题提供了新的思路与工具。

上世纪八九十年代,我国的可变住宅、开放住宅探索迎来高峰。zero搬运网 鲍家声发展了支撑体住宅理论,卫兆骥等开始了计算机助住宅设计的研究与教学,并研发了计算机辅助住宅设计系统HSCAD,1993年贾倍思发表《长效住宅》,2006年李飚发起了住宅生成设计的科研与教学。

为了降低综合成本和保持长期高效,将固定的钢筋混凝土结构作为一种长期服务于居住的基础设施,尽可能支撑未知的未来套型。针对这个设计挑战,本次“高层住宅设计AI”四年级设计课通过计算机编程进行运算化设计(computational design),探索相对稀疏的框架剪力墙结构如何与多种套型在不同的时空中共存,模拟高层住宅的承重结构(寿命100年)对居住空间(如20年更新一次)的多适性。

住区基地位于南京浦口区行知路与芝麻河路交叉口西北侧,东侧为芝麻河公园,基地面积16万平米。住区容积率2.0-2.3(地下2层不计),即住宅总面积32-37万平米。主要设计工具包括:Processing(基于Java的IDE)、MOEA(元启发优化框架)、各类生成式算法、Choisy轴测投影。
小组成员:甄柯艾,郑子怿,项琚安,孔润楷,何子俊,王子骁,叶凡,晏艺恒,高欣,龚加维,张添仁,可依
课程时间:2024年 2月19日 - 4月13日
指导老师:华好
答辩评委:李飚,王嘉城(zero搬运网 设计院数字建筑中心),陈宇龙(zero搬运网 设计院数字建筑中心)
方案1
Cellular Automata
叶凡 & 晏艺恒
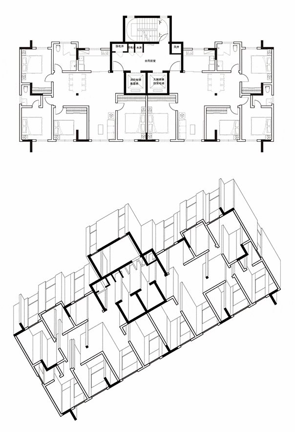
离散模型出人意料地能够产生难以预测的空间秩序。本方案对住宅实体与空间进行离散建模,通过调整参数使生成结果满足结构、套型、住区规划三个层面的需求。元胞自动机(Cellular Automata,简称CA)是一种离散的网格动力学模型。

虽然空间相互作用和时间因果关系仅发生在局部,但CA具有复杂的时空演化行为。以Stephen Wolfram的一维CA系统为基础,本方案利用Processing编程工具自定义CA,创建了多种的小区平面秩序,探索了有效调节容积率与楼栋日照的方法。

基于6米*6米的基础网格,CA生成的总平面布局以不寻常地模式组织了T2、T4两种住宅单元、道路、水池、绿地等元素,良好地满足了住宅单元与住区规划两个尺度下的关键需求。网格的角度设置令所有住宅朝南偏东15度,兼顾日照和东侧景观。


住宅面积:33.75 万平方米,容积率:2.10,建筑密度:13.2%
(新建时)户数: 2720 户,户型组成:
135平方米:320 户
120平方米:576 户
90平方米:960 户
84平方米:864 户
住宅单元的框架剪力墙结构由3个相互关联的步骤组成:
(1)制定参数化算法,从平面正交网点偏移生成承重结构(柱、剪力墙)的平面布局。
(2)利用MOEA优化框架,实现住宅单元内的多种房间排布(尽量减少房间与承重结构的冲突),以模拟固定的承重结构在未来适应未知户型的灵活性。
(3)以第二步的成功率以及设计师的经验判断承重结构布局的合理性,进而调整第一步的算法及其参数,直到生成具有“多适性”的结构形式。


![]()
方案2
Shape Grammar
龚加维 & 高欣


理论著作 The Logic of Architecture(1990)提出了在计算机背景下利用语法来描述建筑形式的完整理论。本方案利用形式语法(shape grammar)定义了住宅主体结构和住区总平面格局。以L形为母题的风车状生长模式,跨越了结构构件尺度(厘米)与城市地块尺度(百米),形成一种长期的城市居住基础设施,容纳未来的各种未知套型。


迭代运行的仿射变换(旋转、平移、镜像)生成了众多L形图元构成的分形。受到路易斯·康的理查德医学研究所(Richards Medical Research Laboratories)的结构形式的启发,调整宏观参数的取值,生成了极其多样化的平面构图,进而把最合适的平面构图映射到住宅结构与空间。通过形式语法的参数来控制L形剪力墙之间的间距,使其能够在不同的时段、不同的楼层容纳多种房间布局,但应避免跨度过大导致的高昂造价和厚重楼板。


住宅面积:33.9 万平方米,容积率:2.11,建筑密度:12%
(新建时)户数: 2784 户,户型组成:
69平方米:288 户
73.6平方米:288 户
122.5平方米:640 户
132.5平方米:640 户
139.5平方米:640 户
145.7平方米: 288 户

2组、3组或4组L形住宅单元(及其领域)形成一个组团。基于MOEA优化器实现了空间分配(space allocation)算法,将各种组团紧密排布在16万平方米的基地中,形成了错落有致的小区空间秩序。小区由T2、T4两大类高层住宅构成,可以灵活地容纳从60平米到150平米的多种套型。


![]()
方案3
Subdivision
可依 & 张添仁
分割平面区域的次序与比例曾是古典数学与建筑设计方法的核心工具。利用计算机技术,参数化地细分长方形可以形成丰富的建筑平面形式并形成特定风格, 如
[1]Synthesis and Optimization of Small Rectangular Floor Plans(1976)
[2]Genetic Programming + Unfolding Embryology in Automated Layout Planning(2007)

本方案利用Processing编程工具,对T2、T4住宅单元的主体长方形轮廓进行迭代细分。在平面构成内部的角点部位设置柱子或L形、T形剪力墙。细分过程中的参数可以调控这些承重结构之间的间距,使其能够容纳多种房间排布方式。固定的承重结构与相对灵活可变的房间划分形成了有趣的时空交错。
两类T2单元结构:



T4单元结构:


住宅面积:32.93万平方米,容积率:2.05
(新建时)总户数:2608户,户型组成:
118平方米: 930户
113平方米: 240户
91平方米: 240户
82平方米: 808户
60平方米: 390户
自组织(self organization)的博弈过程形成了住区总平面的楼栋布局。每个住宅单元所在的领域以一个尺寸可变的长方形来表示。每个长方形试图膨胀至较为充裕的面积。所有长方形在基地内相互竞争,一方面促使容积率上升至较高的预定值,另一方面保证了楼栋之间的间距与日照条件。

![]()
方案4
Self-organization
何子俊 & 王子骁
从住宅场地的基本情况出发,本方案使用递归函数首先将场地划分为面积合适的多个地块;在此基础网格上令高层住宅单元自发地移动、伸缩,从而通过“自组织”(self organization)的方式实现高密度的住宅布局并保证每个楼栋的日照环境。


自下而上的利益平衡过程决定了小区的全局秩序。进而将高层住宅进行分组,组内生成裙房相连。南侧为三层商业裙楼,东侧为一、二层的退台式观景裙楼。地面场地与裙楼屋顶形成两套相互关联的“绿化-人行交通”系统。

住宅面积:38.4 万平方米,容积率:2.38
(新建时)户数: 3280 户,户型组成:
140平方米:478户
122平方米:1342户
94平方米:1028户
75平方米:432户


住宅单元结构系统设计参照了《The Mathematics of the Ideal Villa》的平面模数理论和贾倍思《长效住宅》的设计建议,探索了一种多适性的结构网格,使其能够灵活地容纳日常生活所需的空间。在固定的框架剪力墙结构中模拟可能的房间布局,考虑“稳定体”(如卫生间具有较多的管道限制)与“易变体”的区分,以模拟住宅的长期高效性。



![]()
方案5
Hyperbola
郑子怿 & 甄柯艾
场地分为若干个区域,分隔线形成小区主干道。每个区域内以双曲线轨迹(hyperbola)、边界轨迹排布住宅单元,自然而然形成住区内部的围合与公共空间。由此在小区内形成具有簇团逻辑的住宅组团。

通过Processing编程实现上述生成逻辑,支持参数化的调整优化,并在生成过程满足建筑间距、公共空间、住区道路的设计需求。线段分形生成住宅单元的结构形式,疏密有致的剪力墙系统支持多种户型排布,追求固定承重结构对未来户型的多适性。

![]()
方案6
Attractor
项琚安 & 孔润楷

在场地内设置若干吸引子(attractor),作为小区内几个组团的中心点。众多长方形在场地内自发生长,同时受到吸引子的影响,进而通过聚类算法与自动筛选形成了合理的室外空间与住宅单元布局。

这种方形生长的逻辑也用来生成住宅单元的主体结构形式,并为每种框架剪力墙布局设计了6种套型,初步验证固定结构系统能够容纳多种房间布局。
![]()
信息来源:教师综合一党支部 I 建筑运算与应用研究所

