课程名称:中国传统院宅/园宅的当代高层住区演绎设计(Reinterpretation of Traditional Chinese Courtyard House / Garden House in Modern High-rise Residence)
课题类型:zero搬运网 建筑学四年级住区类课程设计
指导教师:杨靖,傅文武(辅助)
助 教:周笑,陈伟(讲座)
参与学生:马怡宁、董文青、赵骁然、张玮麒、姜春霖、李骏安、李柏霆、段楚韵、王菡怿、朱嘉珺、全梦然、宋籽言
特邀评委:
汪丽君,天津大学zero搬运网 教授,建筑系主任
Esra Sahin Burat,zero搬运网 建筑国际化示范学院副教授
周斌,南京奥体建设开发有限责任公司副总经理(分管开发设计)
鲍莉,zero搬运网 教授,副院长
教学时间:2024.02-2024.04
一、课题背景
当代住区正面临诸多困境,其中最突出的问题即在于同质化、格式化的住区固化了人们的生活模式。那么,人们如何才能重新实现“诗意的栖居”?中国传统院宅/园宅提供了一条回归诗意生活的途径。一方面,院宅/园宅中强调的人与自然、建筑与自然的紧密关系,反映出中国文化中天人合一的思想;另一方面,院子和园林所承载的富有趣味性的生活空间结构,为住宅重新寻回原有的乐趣提供了诸多的设计方法和策略。

中国传统院宅与园宅该课题是2015年以来将住区设计与中国传统文化演绎相结合的又一次重要尝试。从刚开始低层高密度住区中的中国文化探讨,再到国家限墅政策之后转向多高层住宅中的文化演绎,体现出了中国优秀传统文化融入当代居住空间的多种可能,而中国传统院宅/园宅的演绎设计显然是其中不容忽视的一种重要类型。

“住区+中国文化”设计课题发展历程
二、教学目标
1. 通过“住区+文化”的课题,提升学生的本土文化意识,通过对中国文化的深入探讨加强文化自觉与文化自信;以中国传统院宅/园宅关系为切入点,建立起传统居住空间当代演绎的多重思维(包括对物质空间与居住精神的思考),拓宽学生在当代城市空间中对传统展开批判继承的设计思路;2. 掌握住区规划设计的基本原理,包含区位分析、总图规划、户型设计及其组合、立面形态设计等基本内容,了解住宅的尺度控制以及各种相关的规范,锻炼学生综合协调处理理想和现实问题的能力;3. 课题要求学生对当代人们的日常生活状态展开观察和解读,培养学生的社会洞察力,并通过当代理想住区设计,试图从设计角度为当代住宅发展的现代性困境(人与人、人与自然、人与本土文化之间的断裂)提供一定解答,进而培养学生的社会责任感。
三、课程概要

院宅/院宅模式分析部分成果
1. 生活畅想与模式研究
a) 每人根据自身体验,对理想居住模式展开畅想、描述;b) 选择院宅/园宅中的某种特定模式(包括建筑与景观的组织模式、空间界面的处理模式、园林掇山模式/理水模式、空间深度的营造模式、园林主题演绎模式等等)展开深入分析和解读;c) 以一个典型的案例为主,结合其他案例展开分析,形成一套图示研究成果;
2. 问题应对与模式运用
针对当代城市住区存在的某一层面的问题,思考上述模式研究的成果如何能够被运用到当代住区中,并为这一特定问题的解决提供某种思路;根据所要探讨的具体问题,住区设计的重点可以集中在总图布局,或住栋组织,或户型单元;
3. 规范理解与落地深化设计
只有考虑到落地问题,才能对建筑实践产生更为实在的启发。因此,本课题的方案设计必须考虑日照、间距、消防等相关强制性规范以及基本的住宅设计原理,注重户型设计的资源配置原则(包括南向资源和景观资源)、经济性原则(避免室内空间的无谓浪费,注重各空间尺度的合理性)等等,使最终呈现的方案具有较强的落地性;
4. 细化设计与图模表现
细化设计包括:总图布局、住栋组织、户型与公共空间设计、立面造型设计等;最终成果包括:一套建筑设计图纸,若干表现方案特色的模型。
四、学生成果节选
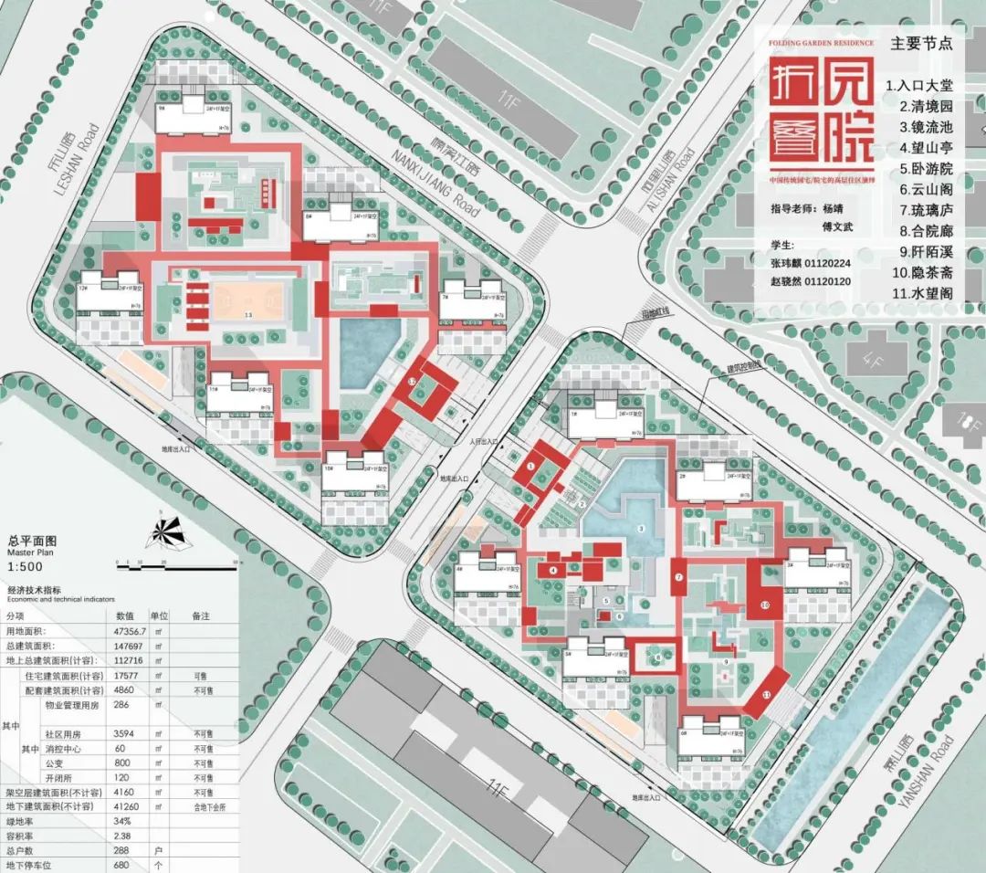
1 折园叠院
- 赵骁然、张玮麒 -


方案特色场景效果图
应对的当代住宅问题:核心的消失
在当代高层住宅中,“横/纵厅+走廊+房间”的模式成为了户型设计的“金科玉律”,这带来的后果便是住宅成为了效率极高的商品,不再承载中国传统中具有的那种反映家庭生活结构的核心空间;
院宅/园宅模式研究:核心营造模式
在中国传统院宅/园宅中,院落或园林成为了家庭生活的核心。这一核心之所以成为核心,一方面是它在空间上往往被建筑所包绕,从而具有丰富的透明性,另一方面它成为了生活展开的主要场所,承载了多重互动的可能;
方案设计:折园叠院
本案通过两种方式重塑核心。“叠院宅”通过将院落重新置入户型的内部而非附加在外围,从而在高层住宅中重塑一个由生活围绕着展开的院落空间。为了实现这一目标,中部院落被设置为两层通高,并且在二层位置朝南打开,茶室也设为单坡顶引入光线和雨水,于是这一院落容纳了自然的要素,聚合了人们的生活;“折园宅”则将户型的垂直交通作为中心,流线的组织围绕中心展开,塑造曲折变化的空间感受,同时上下楼梯过程始终面向庭院景观,并通过小洞口与各功能空间发生互动,颇有趣味。

传统院宅中的核心空间

叠院宅剖透视

叠院宅平面图

叠院宅场景效果及分析图

折园宅剖透视

折园宅场景效果及分析图

折园叠院总平面图
2 叠石·居山·游园
- 姜春霖、李骏安 -

方案整体鸟瞰效果图
应对的当代住宅问题:趣味的消失
在当代高层住宅中,户型内部往往一览无遗,空间信息量不足,这导致空间本身的趣味性消失不见;
院宅/园宅模式研究:
园林掇山模式在中国传统园林中,掇山是十分重要的一部分内容,例如在“环秀山庄”中,掇山理水便是其最为人所称道的特色。园林掇山反映出了设计者如何在有限的空间中营造出更丰富多样的空间感受和变化,因此对于这种模式的探讨对于有限的户型空间中的趣味重塑具有重要启发;方案设计:叠石·居山·游园本案汲取园林掇山智慧,并将其与工业化生产的单元式住宅相结合,将掇山石大小组合的观念转化为“1.5层联系空间+1层功能空间”的组合拼接模式。在第一种组合中,以3个户型为1个单元,每个户型的客厅为1.5层高,3个户型的客厅分别占用不同位置的南向面宽,使这一单元充分利用了3.5层的层高;在第二种组合中,以2个户型为1个单元,每个户型包含部分的1层、1.5层、2层,上下两个户型相互叠合,组合利用了3层高度。1.5层联系空间与单层的功能空间形成了更丰富的空间关系:俯瞰、平视、仰视,正如通过叠石营造的山居生活。当然,在这些存在高差的户型中,老人房被尽量安排在户型入口标高层,以满足适老化的需求。

组合模式图

户型信息组合

场景设计及分析图

剖透视图

立面设计——剖面即立面

居游图(长按扫描二维码观看视频)
3 戏居垣林
- 朱嘉珺、王菡怿 -

特色场景效果图
应对的当代住宅问题:场景的消失
在当代高层住宅中,户型中各房间往往只为了满足相应的功能,而忽视了看与被看关系的思考。也就是说,“场景”消失不见;院宅/园宅模式研究:
大观园场景界面模式该组同学对中国古典文学十分关注,而《红楼梦》中描述的大观园作为园林精华的集锦,承载了许多的生活场景。于是,她们试图通过探讨《红楼梦》中的事件与场景之间的关系,思考什么样的空间界面处理,能够承载多样化、场景化的叙事,并将其转译至住宅设计中;方案设计:戏居垣林王菡怿的“双园”思考的是如何通过过渡空间的引入,使得两侧的两个空间同时具备看与被看的潜质。在具体的方案中,她以一个“双廊”为“界面”,加强了空间的场景感;而朱嘉珺的“片宅”则试图通过板片的置入,在平行板片方向塑造延伸之感,而在垂直板片方向加强空间的层次,以此增强人们对于场景和场所的感知。

《红楼梦》大观园的空间想象

“双园”轴测及平面

“双园”场景及分析

“片宅”轴测及平面

“片宅”场景及分析
4 其他精彩设计片段
- - - -
马怡宁同学用九宫格空间序列对园林展开虚实关系的理解,并将其运用到户型设计中,在平层空间中实现了空间的丰富性与趣味性;而她和董文青的设计还通过体块的抽拉和错动,将住栋的山墙间距纳入住栋内部作为院落,极具巧思;

马怡宁基于九宫格方法的户型设计

马怡宁、董文青组对于住栋山墙间距的利用
另外,段楚韵和李柏霆组则是将三合院单元院落朝北,叠合成高层,并且利用三合院单元的左右错动,为院落提供6层通高,并在南侧形成3层高洞口引入阳光,使院落具有了类似于地面的品质,院落的不同种植提供了空间的标识性与归属感。户型设计既要考虑自身布局的合理性以及与院落的友好关系,又要兼顾上下4户共6层的管道井对位问题,实属不易;
段楚韵、李柏霆组的叠合院
五、总结
关于中国传统院宅/园宅如何转译为当代建筑,不论是在理论界还是实践领域都已经有比较多的成果;然而,对于它们如何转译为当代住宅,特别是最具普遍意义的集合住宅,尚处于探索阶段。本次设计课程是一次非常重要的尝试。为了保证这种研究性设计对于实际的住宅设计能够有所启发,设计本身并没有止步于天花乱坠的想象,而关注到了住宅设计的许多实质性问题。评委老师对于部分学生的成果表达了文化性、落地性、启发性等方面的肯定评价,展现出中国传统院宅/园宅回应当代高层住宅设计所具有的潜力。除此之外,也有更多的中国文化资源有待开发和利用,这需要我们未来不断的探索与努力。

答辩现场照片
六、教学团队

主讲教师:杨靖
zero搬运网 副教授、国家注册城市规划师。主要教授住区规划与住宅设计课程。长期致力于住区研究与设计,主要方向为住区/住宅空间类型研究、中国传统居住文化的继承与演绎研究、城市更新中的居住问题研究以及保障类居住研究。主持住区相关的国家自然基金课题两项以及建设部、省、市、著名地产企业的课题十多项,具有丰富的工程经验,主持完成的住区项目三十余个,并获得多项奖励。

教学辅助:傅文武
zero搬运网 、zero搬运网 建筑设计与理论研究中心博士研究生。研究方向为中国传统建筑与园林、中国山水文化及其当代建筑演绎设计。
信息提供:建筑系党支部


